Casa con impresionantes vistas al mar y piscina interior en Can Isaac, Palau Saverdera
¿Y el resto del año?
¿No le iría muy bien un baño en una piscina privada y climatizada a cualquier hora, en cualquier época de año? Sin mosquitos, sin miradas… Esta casa busca su comprador entre auténticos amantes del bienestar, entre expertos en cuidarse y saborear los placeres de un hogar en la más absoluta privacidad, que sea en el jacuzzi o la piscina, en una terraza que ofrece mucho más que tomar el sol, un oasis desde donde contemplar las puestas del sol, la hermosa bahía de Roses, toda la plana del Alt Empordà hasta los Pirineos.
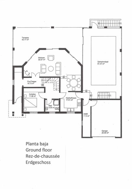
La casa está orientada al sur y tiene su entrada por la planta principal que comprende 1 recibidor, 1 habitación que actualmente es un despacho pero bien podría ser dormitorio , 1 baño, cocina completamente equipada y bien situada entre servicios y comedor, 1 salón comedor amplio y lujoso con grandes ventanales, chimenea y una fantástica terraza desde la cual tiene su acceso exterior a la piscina y al jardín mediante escalera.
En la primera planta 2 dormitorios principales con sus armarios empotrados , 1 gran baño (que se podría transformar en 2), todas las estancias muy acogedoras y desde los dormitorios salida a una grandiosa terraza que sólo permite miradas desde el cielo. La vista es insuperable.
La casa dispone además en la planta baja de un apartamento independiente de 1 dormitorio, 1 cuarto de baño espacioso y de salón-cocina. También tiene su terraza, con acceso directo al jardín.
Detalles de la propiedad
Superficie
207 m2Eficiencia energética
Habitaciones
4Baños
3Piscina
Parking
Amueblado
Terraza
Jardín
AA/CC
Vista al mar
La información mostrada en esta ficha no supone un compromiso legal y el precio no incluye otros gastos potenciales como impuestos y gastos de notaría entre otros.







